Chủ đầu tư:
Mekong Trens
Diện tích:
200 m2
Đơn vị thực hiện:
Nội Thất Văn Phòng Hữu Thịnh
Năm:
2014
Vị trí:
Tòa nhà Techcombank - Cần Thơ

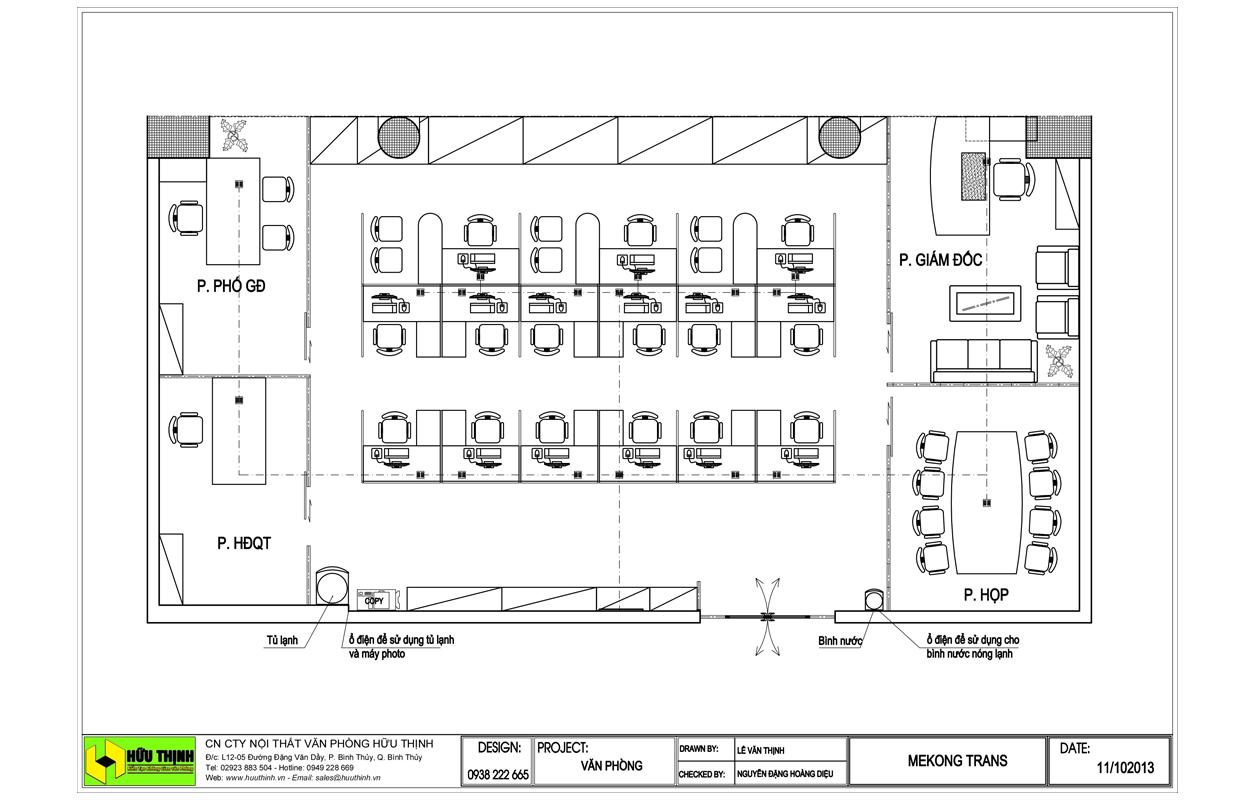
Nội thất văn phòng cty vận tải Mekong Trans tại Cần Thơ

Nội thất văn phòng cty vận tải Mekong Trans tại Cần Thơ được thiết kế văn phòng không gian mở được Nội Thất Hữu Thịnh thi công các hàng mục sau:

Hệ thống vách ngăn văn phòng làm việc

Phòng làm việc lãnh đạo và phòng họp được phân tách với khu làm việc chung sử dụng kính cường lực, dán Decal phần dưới và logo công ty phí trên tạo nên không gian thông thoáng, lấy tối đa ánh sáng tự nhiên vào văn phòng.

Khu vực bàn làm việc chung cho các bộ phận

Khu vực bàn làm việc chung cho các bộ phận được thiết kế với vách ngăn văn phòng khung nhôm phần dưới bọc vải nỉ, phần trên kính, được dán Decal mờ cắt chữ các phòng bàn làm việc, mỗi vị trí làm việc được trang bị bàn văn phòng, tủ phụ kết hợp bàn phụ, kệ CPU. Riêng bàn quản lý được trang bị thêm hộc tủ di động và bàn phụ giúp thêm không gian làm việc và lưu trữ hồ sơ.

Hệ thống tủ hồ sơ

Hệ thống tủ hồ sơ gỗ được thiết kế với 2 dãy sát tường cao và thấp, trong hệ thống tủ có một tủ được bố trí tủ điều hiển điện tổng, tạo tính thẩm mỹ cho văn phòng làm việc.

Thông tin liên hệ

Hãy liên hệ với chúng tôi khi có nhu cầu về thiết kế nội thất văn phòng tại Cần Thơ theo các thông tin bên dưới, Nội Thất Hữu Thịnh sẽ cùng bạn tạo ra một không gian làm việc đúng với mong muốn và đáp ứng được nhu cầu riêng của doanh nghiệp.

Văn phòng cửa hàng trưng bày: L12-05 Đường Đặng Văn Dầy, P. Bình Thủy, Q. Bình Thủy, Tp. Cần Thơ

Websitewww.huuthinh.vn

Emailsales@huuthinh.vn

Xưởng sản xuất tại Cần Thơ: 38/18 Đường Huỳnh Phan Hộ, P. Bình Thủy, Q. Bình Thủy, Tp. Cần Thơ

Điện thoại:

                           - P. Bán hàng: 02923 883 504 - 0949 228 669

                           - P. Dự án: 0914 003 808 - 0938 222 665

Chỉ đường đến nội thất Hữu Thịnh trên Google Maphttps://goo.gl/maps/EfN18bWFW7F8LeE29

 

TOP
Messenger Zalo
Hotline tư vấn Hotline Xem bản đồ Xem bản đồ Chat Messenger Messenger Chat Zalo Zalo